View from rear courtyard (Semper)
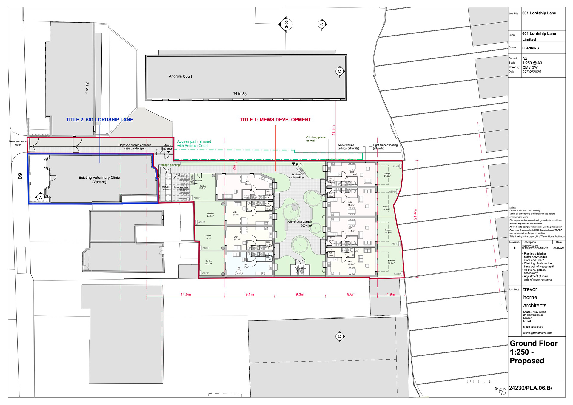
Working with a former kennel backland, we designed a modest, people-focused mews of eight family dwellings arranged around a central courtyard. Developed in partnership with landscape designers, the shared garden structure encourages interaction between residents and supports biodiversity through thoughtful planting and surface treatment. Mixed tenure homes and a fully car-free layout promote social diversity and safe, walkable space, accessed via a newly resurfaced lane with secure cycle storage and controlled entry.