GP Health Centre & Educational Services
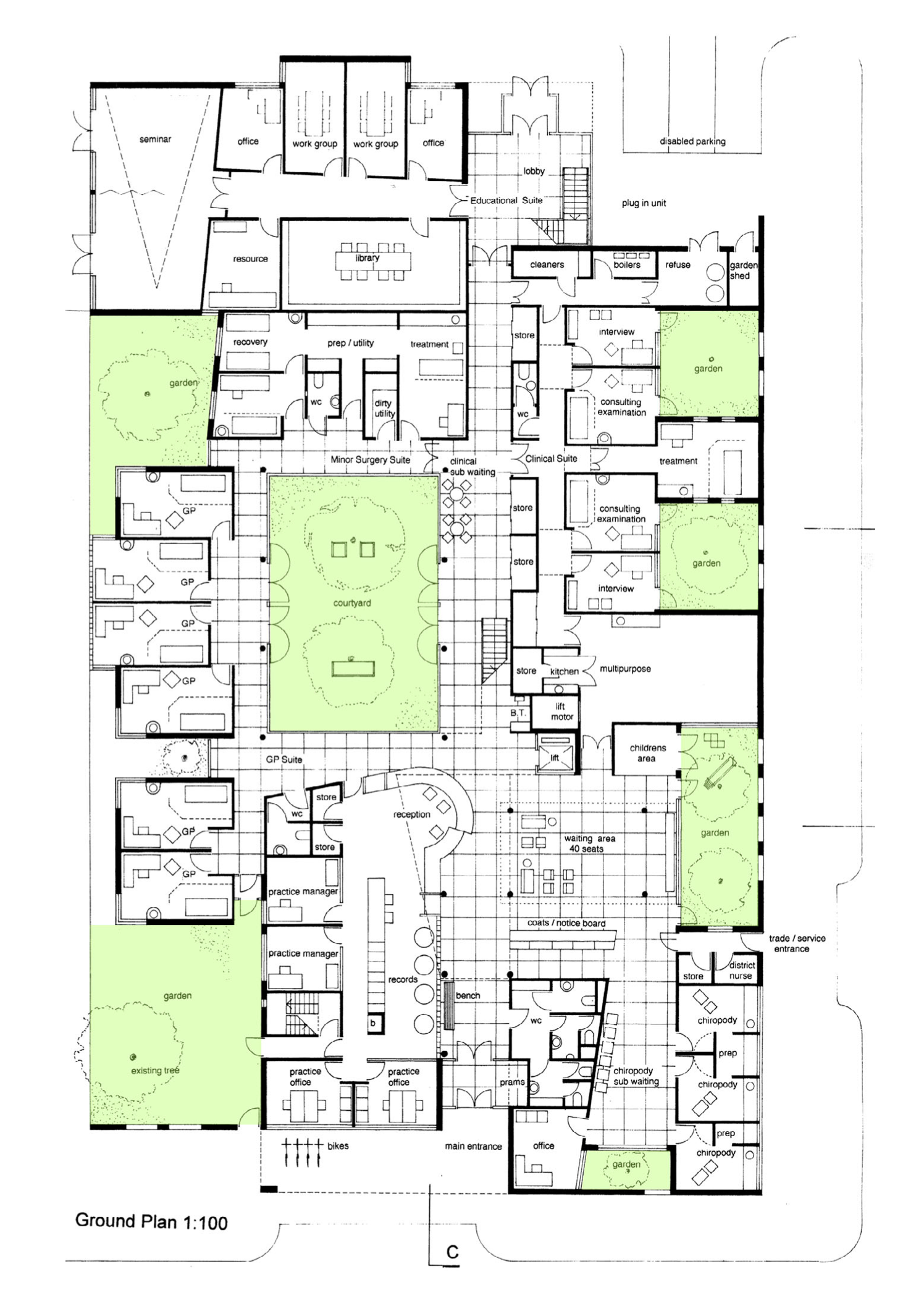
This scheme proposes a new health facility for Barking and Havering FHSA. A series of courtyards structure the plan and create a walled oasis of calm and quiet in contrast to a fairly hostile urban district.
Dagenham, London
RIBA Competition