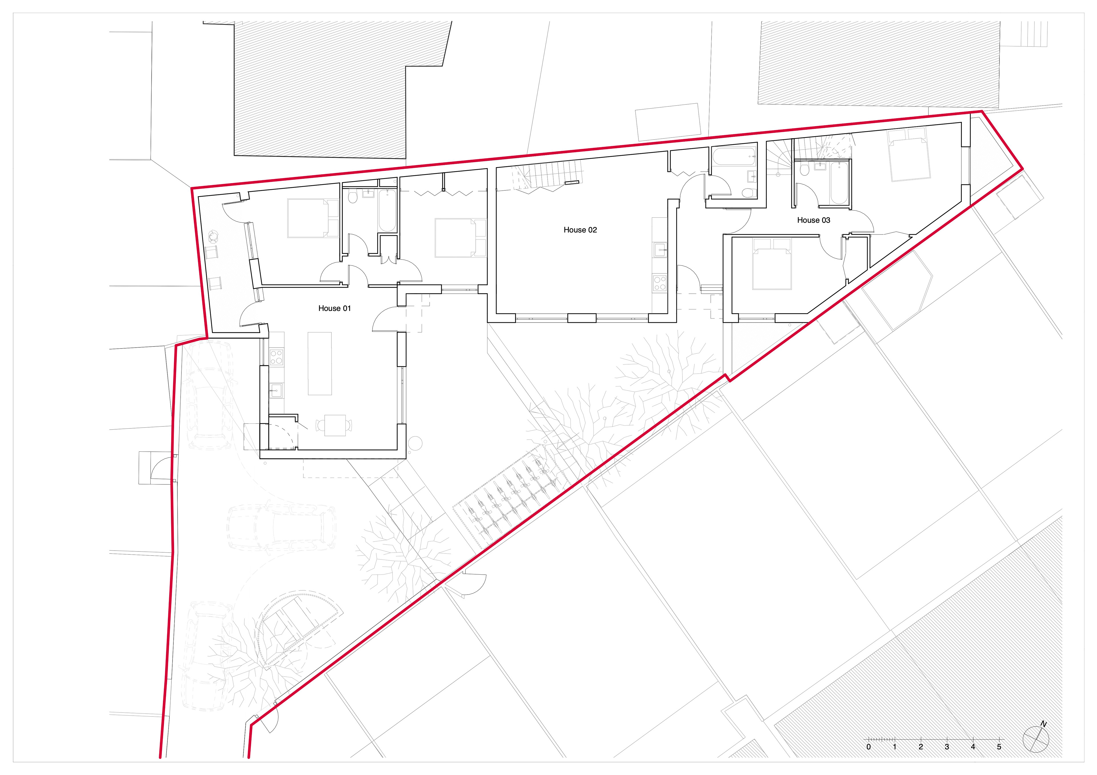
Ground Floor Plan
Sydenham Mews
Occupying a compact former garage site, the scheme delivers three family houses carefully placed around a central landscaped courtyard. Integrated planting, shared amenity spaces and considered massing create a peaceful, private ‘urban village’ character within a dense residential context.
Lewisham, London
Progress: Pre-App