Clapham Road
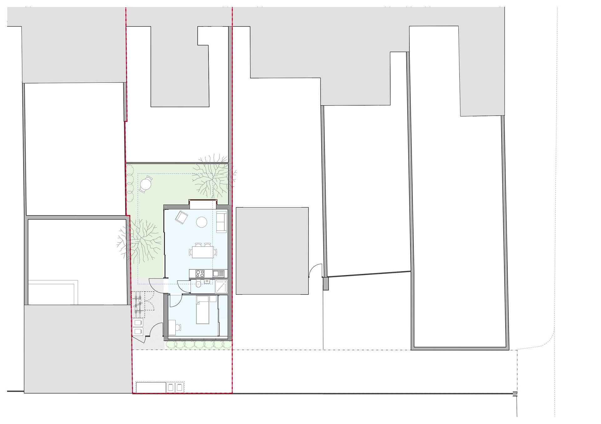
A new studio dwelling on a backland garage site adjoining a Grade-II listed residential terrace. The proposal follows the redevelopment of the neighbouring garage and retains the utilitarian, ancillary form of the existing building.
Kennington, London