View from Mews entrance
Front view of Mews Townhouses
Harley Court (left) with Harley Mews (middle)
Harley Mews sectional perspective
Penthouse Floor Plans
Proposed view of Townhouse 01's rear garden
Townhouse 01 Floor Plans
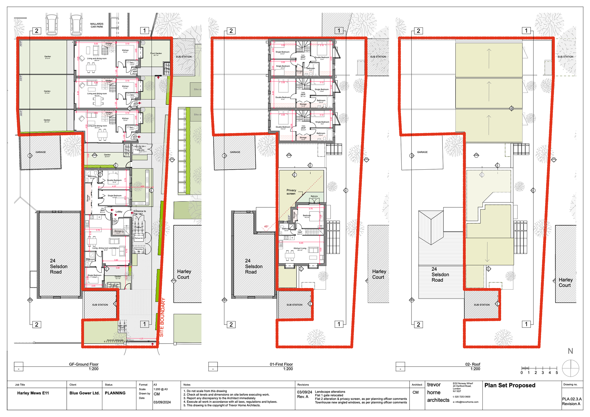
Located in Wanstead, London, Harley Mews is a low-density housing scheme comprised of 5 dwellings, situated on a vacant garage site. Three Townhouses and two flats are arranged as a 2-storey mews, sensitively responding to the typology of the terraced house. The project grew out of a Prior Approval rooftop extension at Harley Court, a post-war apartment building. As part of the upgrade, we refreshed the façades and entrances. The presence of 14 vacant garages on the site opened up the opportunity to create a small mews of family homes, adding value and revitalising the area.
View from Mews entrance
Front view of Mews Townhouses
Harley Court (left) with Harley Mews (middle)
Harley Mews sectional perspective
Penthouse Floor Plans
Proposed view of Townhouse 01's rear garden
Townhouse 01 Floor Plans