All Projects
Work in Progress
Arts
Residential
Houses
Mixed Use/Retrofit
Workplace
Heritage
Health
Education
Cafes/Restaurants
Urban Design
Community
News
Publications/Awards
Contact
All Projects
Work in Progress
Arts
Residential
Houses
Mixed Use/Retrofit
Workplace
Heritage
Health
Education
Cafes/Restaurants
Urban Design
Community
News
Publications/Awards
Contact
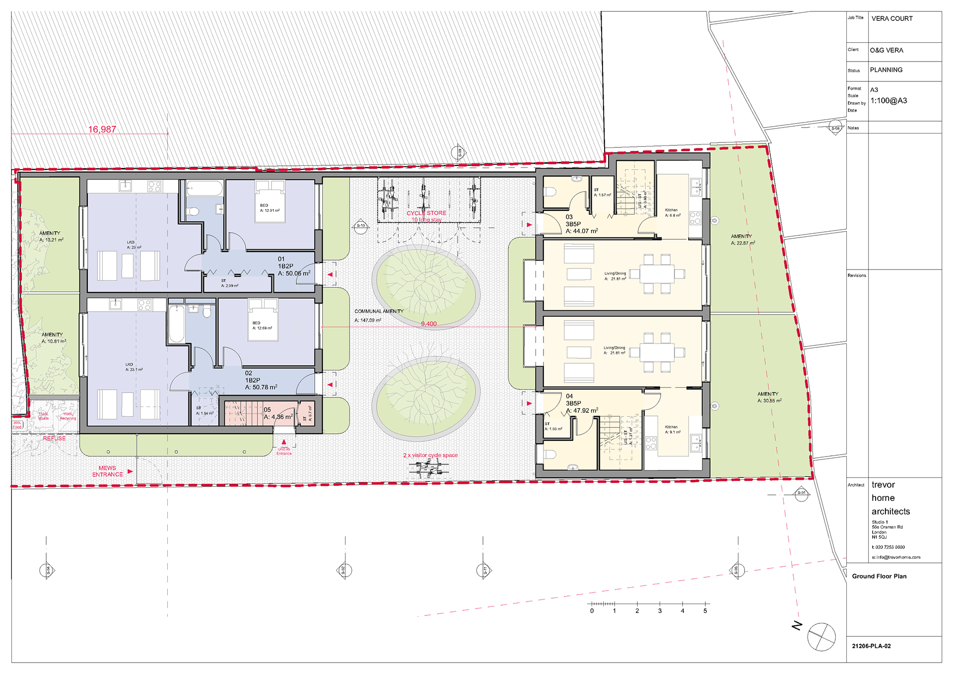
Vera Court
Haringey, London
Status: Planning Approval
↑
Back to Top