 
      
      
      
      
      
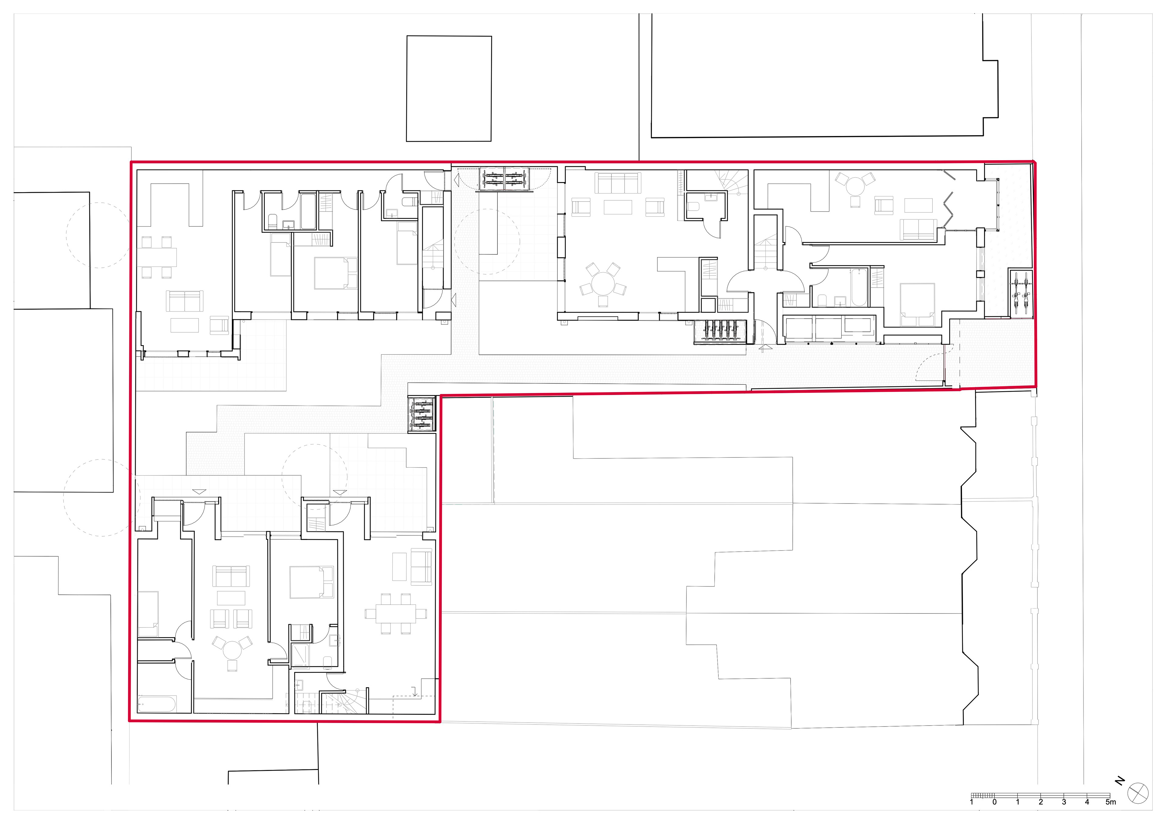
     Project to provide a flatted development of 8 units on a L-shaped infill site currently occupied by dilapidated lock-up garages. In just 10 months, and following extensive discussions with Waltham Forest Council including two pre-application submissions, the scheme recently achieved consent.
 
      
      
      
      
     